
Учебник Ю.Н. Макарычева «Алгебра 7 класс» давно зарекомендовал себя как одно из лучших пособий по алгебре, которое одинаково эффективно помогает ученикам освоить сложные темы, а учителям — грамотно организовать уроки.
Ключевые преимущества учебника:
1. Продуманная структура — от теории с понятными объяснениями и примером применения до практических заданий.
2. Широкий выбор заданий — от лёгких упражнений до задач, развивающих аналитическое мышление.
3. Практическая ценность— задачи с опорой на жизненные ситуации делают материал ближе к реальности.
4. Подробные объяснения— пошаговая подача сложных тем облегчает освоение ключевых концепций.
5. Экзаменационный тренинг — в конце разделов представлены задания для подготовки к контрольным работам.
Пособие Макарычева не только учит математике, но также развивает логику, аналитическое мышление и целеустремлённость. Для успешного изучения алгебры и уверенного выполнения задач этот учебник станет идеальным выбором.
ГДЗ по Алгебре 7 Класс Номер 872 Макарычев — Подробные Ответы
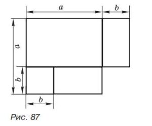
С помощью рисунка 87 разъясните геометрический смысл формулы \((a — b)(a + b) = a^2 — b^2\) для положительных \(a\) и \(b\), удовлетворяющих условию \(a > b\).
Чтобы найти площадь прямоугольника со сторонами \( (a — b) \) и \( (a + b) \), можно представить её как разность площадей и сложение площадей других фигур:
Площадь квадрата со стороной \( a \) равна \( a^2 \).
Площади прямоугольников со сторонами \( b \) и \( (a — b) \) равны \( b \cdot (a — b) \).
Площадь квадрата со стороной \( b \) равна \( b^2 \).
Тогда площадь прямоугольника будет равна:
\( a^2 — b(a — b) — b^2 + b(a — b) = a^2 — b^2 \),
следовательно,
\( (a — b)(a + b) = a^2 — b^2 \).
—
Площадь прямоугольника со сторонами \( a — b \) и \( a + b \) равна
\( S = (a — b)(a + b) \).
Также эту площадь можно определить, отняв от площади квадрата со стороной \( a \) площадь прямоугольника со сторонами \( b \) и \( a — b \) и площадь квадрата со стороной \( b \), а затем прибавив площадь прямоугольника со сторонами \( b \) и \( a — b \).
Площадь квадрата со стороной \( a \) равна \( a^2 \).
Площади прямоугольников со сторонами \( b \) и \( a — b \) равны \( b(a — b) \).
Площадь квадрата со стороной \( b \) равна \( b^2 \).
Тогда определим площадь прямоугольника со сторонами \( a — b \) и \( a + b \):
\( a^2 — b(a — b) = b^2 + b(a — b) = a^2 — b^2 \).
Получили равенство: \( (a — b)(a + b) = a^2 — b^2 \).
Чтобы найти площадь прямоугольника со сторонами \( (a — b) \) и \( (a + b) \), сначала рассмотрим квадрат со стороной \( a \). Его площадь равна \( a^2 \), так как площадь квадрата вычисляется как длина стороны, умноженная сама на себя. Это будет нашей отправной точкой, потому что стороны прямоугольника связаны с величинами \( a \) и \( b \).
Далее обратим внимание на два прямоугольника со сторонами \( b \) и \( (a — b) \). Площадь каждого такого прямоугольника равна произведению этих сторон, то есть \( b \cdot (a — b) \). Важно понимать, что эти прямоугольники можно представить как части, которые нужно вычесть и добавить при вычислении общей площади. Также есть квадрат со стороной \( b \), площадь которого равна \( b^2 \). Все эти фигуры вместе помогают нам выразить площадь нужного прямоугольника через известные площади.
Теперь сложим и вычтем эти площади, чтобы получить площадь прямоугольника со сторонами \( (a — b) \) и \( (a + b) \). Формула будет выглядеть так: \( a^2 — b(a — b) — b^2 + b(a — b) \). Обратите внимание, что слагаемые \( — b(a — b) \) и \( + b(a — b) \) сокращаются, остаётся \( a^2 — b^2 \). Таким образом, мы получили равенство \( (a — b)(a + b) = a^2 — b^2 \), что является классической формулой разности квадратов.
Площадь прямоугольника можно также определить другим способом: сначала взять площадь квадрата со стороной \( a \), равную \( a^2 \), затем отнять площадь прямоугольника со сторонами \( b \) и \( (a — b) \), которая равна \( b(a — b) \), и площадь квадрата со стороной \( b \), равную \( b^2 \). После этого нужно прибавить площадь прямоугольника со сторонами \( b \) и \( (a — b) \), то есть снова \( b(a — b) \). Эти действия позволяют учесть все части фигуры, не забывая ничего лишнего и не дублируя площади.
Площади прямоугольников и квадратов, которые мы используем, связаны следующим образом: площадь квадрата со стороной \( a \) — это \( a^2 \), площадь прямоугольников со сторонами \( b \) и \( (a — b) \) — это \( b(a — b) \), а площадь квадрата со стороной \( b \) — это \( b^2 \). Таким образом, когда мы вычисляем \( a^2 — b(a — b) \), мы фактически вычитаем из площади квадрата часть, которая не входит в нужный прямоугольник.
В итоге, вычислив \( a^2 — b(a — b) \), мы получаем равенство \( b^2 + b(a — b) = a^2 — b^2 \). Это подтверждает, что площадь прямоугольника со сторонами \( (a — b) \) и \( (a + b) \) действительно равна \( a^2 — b^2 \), что соответствует формуле разности квадратов. Такое развернутое объяснение помогает понять, почему именно эта формула работает и как связаны площади разных фигур в задаче.

Важно отдавать предпочтение не просто шпаргалкам, где написан только ответ, а подробным пошаговым решениям, которые помогут детально разобраться в вопросе. Именно такие вы найдёте на этой странице. Решения SmartGDZ подготовлены опытными педагогами и составлены в соответствии со всеми образовательными стандартами.


Оставь свой отзыв 💬
Комментариев пока нет, будьте первым!